Guide Price £629,950 | Under Offer

Station Road Claygate Surrey

2 1 1

Key Features

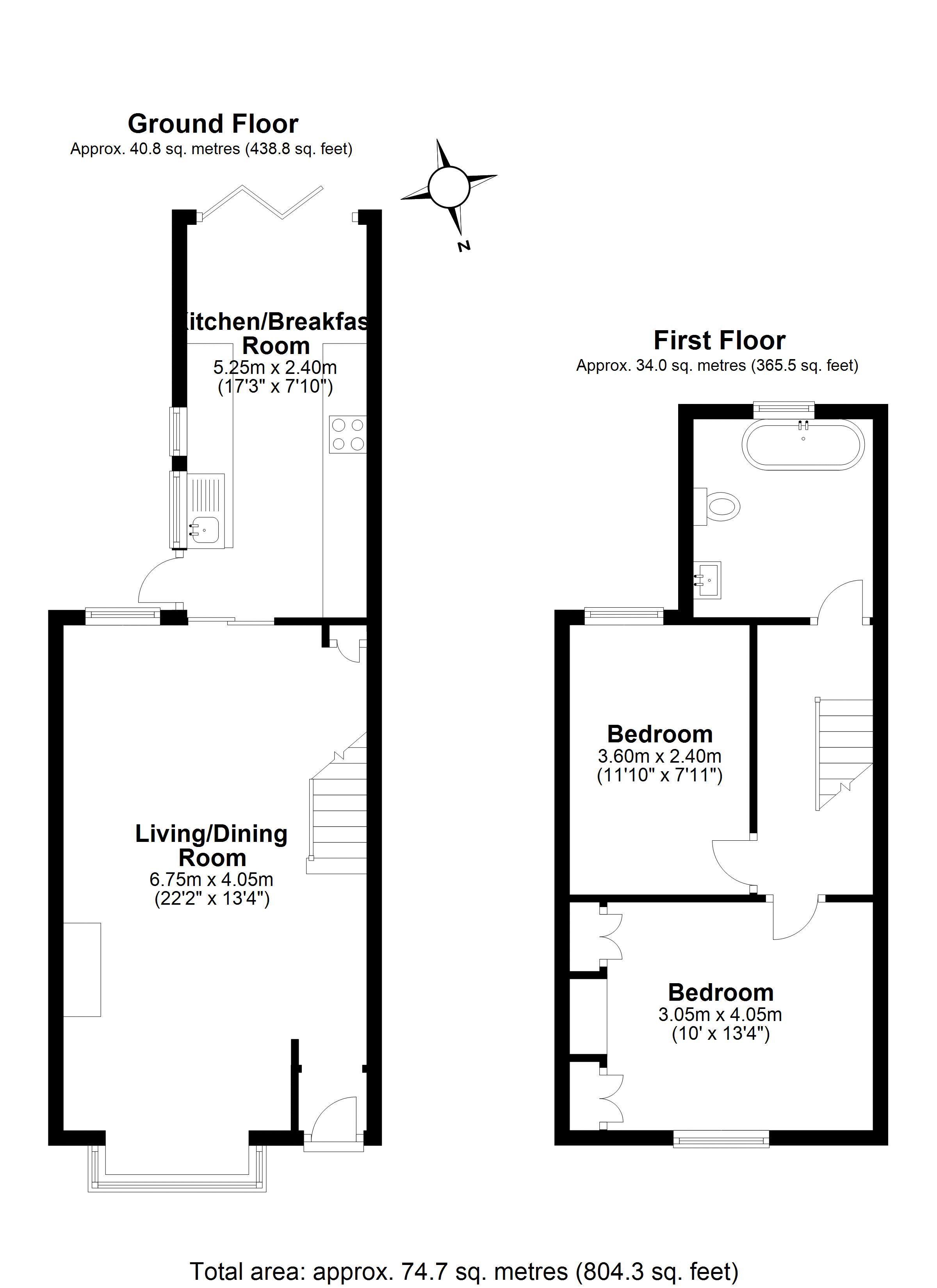
  • Superb open plan living/dining room with feature exposed brick wall
  • Recently fitted new kitchen/breakfast room with Bi-fold doors
  • Space for Breakfast Table & Chairs or Home Working Space
  • Two Double sized Bedrooms
  • Recently fitted Victorian Period style bathroom
  • Pretty south facing rear garden
  • Gas Central Heating with recently Fitted Boiler
  • New Roof- Loft Storage with Velux Windows
  • Planning Permission Granted to Convert the loft into A Bedroom Suite.
  • Tastefully decorated throughout - NO ONWARD CHAIN.
A delightful and superbly presented Victorian two-bedroom cottage with a fabulous open plan living space with an brick exposed feature wall and staircase with a bespoke glass bannister. The house has undergone a considerable refurbishment program with a brand-new kitchen breakfast room as well as a period style luxury first floor bathroom & has had a new roof approximately two years ago.The property is ideally located within easy walking distance of the parade of shops and restaurants including the mainline station (Waterloo London 35 minutes)
NO ONWARD CHAIN.
Request a Valuation